





Код товара:
46186Артикул:
BVT0024.06MPN:
BVT0024.06-tbm-24Наличие:
Нет в наличии
0 ₽
Цвет
ЧерныйВес
0.063 кгТорговая марка
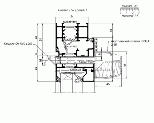
BROOKVENTВентиляционный канал 95мм для монтажа оконных клапанов на алюминиевые конструкции. Размеры 170х12,6х95 мм.
Цвет
Черный
Параметры
Вес
0.063 кг
Торговая марка
BROOKVENT
Отзывов: 0
Нет отзывов о данном товаре.
Похожие товары
Вы смотрели