Код товара:
44905Артикул:
BVT0024.07MPN:
BVT0024.07-tbm-gmtНаличие:
Нет в наличии
339 ₽
Цвет
БелыйВес
0.048 кгТорговая марка
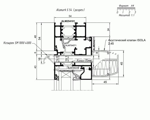
BROOKVENTВентиляционный канал 95мм для монтажа оконных клапанов на алюминиевые конструкции. Размеры 170х12,6х95 мм.
Цвет
Белый
Параметры
Вес
0.048 кг
Торговая марка
BROOKVENT
Отзывов: 0
Нет отзывов о данном товаре.
Похожие товары
Вы смотрели